Corrientes - San Roque
En ejecución

48
Viviendas totales
2023
Año de inicio
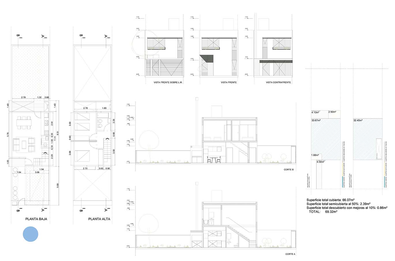
3.285,66 m2
Superficie a construir
Ubicación: Entre calles Carlos de Alvear, Cnel. Montenegro, Independencia y Desiderio Sosa

Las imágenes de los renders son solamente a modo ilustrativo.

Tipología de vivienda: Multifamiliar
| Unidades | Superficie | AMR* |
|---|---|---|
| 42 | 69m2 | No |
| 5 | 65m2 | No |
| 1 | 65m2 | Sí |
*Vivienda apta para personas con movilidad reducida.






