Historia del ministerio
Situado en el barrio de Monserrat, más exactamente en la calle Azopardo 250 de la ciudad autónoma de Buenos Aires, a pocos metros de la Casa de Gobierno, se levanta el edificio “Libertador, General San Martín”, hoy sede del Ministerio de Defensa, del Estado Mayor Conjunto de las FFAA y del Estado Mayor General del Ejército.


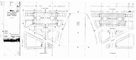
En el año 1938, los arquitectos Enrique Lopardo, Néstor Pastrana, y Héctor Campini; bajo la dirección General de Arquitectura del Ministerio de Obras Públicas de la Nación, estudiaron el proyecto del emplazamiento de dos edificios simétricos sobre el predio de los parques Colón y Nueve de Julio, y en terrenos ganados al Río de La Plata. Los mismos serían destinados al Ministerio de Guerra y al Ministerio de Marina. Finalmente, este último fue ocupado por el actual Edificio Guardacostas, de la Prefectura Naval Argentina.


El edificio del Ministerio de Guerra fue distribuido en dos bloques con las fachadas que miran al este y al oeste. Ambos pabellones están unidos por una sección central que posee dos patios internos que dan aire y luz a las oficinas.


Orientado de frente a los principales edificios públicos y su contrafrente hacia el Río de la Plata, su ubicación estratégica fue fijada conforme a un plan de urbanismo que comprendía la distribución de grandes edificios de la Administración Pública, tomando como eje la línea central de la cúpula del Palacio de Congreso, Avenida y Pirámide de Mayo.

El Ministerio de Guerra fue inaugurado en abril de 1943 por el presidente Ramón Castillo, cuando su ministro de Guerra era Pedro Pablo Ramírez, quien lo derrocaría pocos meses después en la llamada Revolución del 43.

En 1950 el presidente general Juan Domingo Perón decretó a ese año como el “del Libertador General San Martín”, al cumplirse el centenario del fallecimiento del padre de la Patria. Por ello también el edificio recibió su nombre, en honor a uno de los grandes libertadores de Sudamérica. Ocho años después, bajo la presidencia de Arturo Frondizi, el Ministerio de Guerra pasó a llamarse Ministerio de Defensa.
Arquitectura
El Edificio Libertador representa la transición entre la arquitectura que se desarrolló en la Argentina desde 1880 y hasta 1930 con el movimiento racionalista. Su estructura edilicia responde a las construcciones de la época, fabriles, de servicios, transporte y comunicaciones.
Se adoptó el estilo denominado Renacimiento Francés con remate de mansarda de pizarra importada, que cubre los tres pisos superiores y sus fachadas en forma de sillería, revestido todo de cemento blanco y arena calcárea; pulido a piedra fina.
La arquitectura exterior del edificio es de estilo clásico, uniendo la simplicidad de sus líneas y monumentalidad en su composición de conjunto. Se ha tratado de armonizar las características exteriores con las del palacio de correos.
Toda la cimentación del edificio, cuya planta puede inscribirse en un rectángulo de 130 mts x 60 mts, está construida por un sistema de pilotaje.
En razón de su altura, se ha previsto el contraventamiento del edificio, constituido por tubos y conductos verticales de hormigón armado. A fin de desviar grandes cargas, de acuerdo a la conveniencia de la distribución, se ha recurrido a la utilización de puntales que abarcan varios pisos.
Por su ubicación, han debido salvarse grandes dificultades, comenzando por las fundaciones que debieron ejecutarse en un terreno magnifico estratégicamente, pero inapropiado por su estructura poco consistente.

La obra finalizada fue sinónimo de un gran esfuerzo técnico y una verdadera belleza inmersa en una sólida construcción, de gran amplitud y calidad en sus instalaciones, con una espaciosa distribución de todos sus ambientes y dependencias.
Es de señalar que por sus características, el edificio cubre una superficie de 82.625 metros cuadrados, estando dotado de todos los servicios de comunicación con las Unidades y dependencias militares de la República.

Fuentes
Programa de Recuperación y Conservación del Patrimonio Cultural del Ministerio de Defensa.
Muestra Entre Ayer y Hoy (Hernán Oviedo).
Archivo General de La Nación.
CDI (Centro de Documentación e Información (MECON).
CEDIAP (Centro de Documentación e Investigación de la Arquitectura Pública) Archivo general de la Nación y
CDIAP Servicio Histórico del Ejército.