Buenos Aires - Quilmes
En ejecución

132
Viviendas totales
2023
Año de inicio
396
Puestos de trabajo totales
9.741 m2
Superficie a construir
Empresa adjudicada: TEXIMCO

Las imágenes de los renders son solamente a modo ilustrativo.

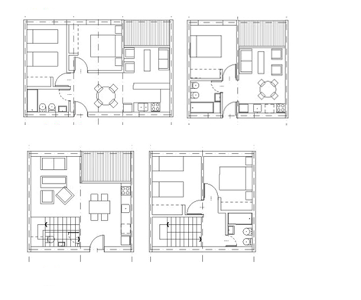
Tipología de vivienda: Multifamiliar
| Unidades | Superficie | Dormitorios | AMR* |
|---|---|---|---|
| 29 | 45m2 | 1 | No |
| 99 | 65m2 | 2 | No |
| 4 | 65m2 | 2 | Si |
*Vivienda apta para personas con movilidad reducida.
