Buenos Aires - Monte Hermoso
En ejecución

70
Viviendas totales
2021
Año de inicio
4.778 m2
Superficie a construir
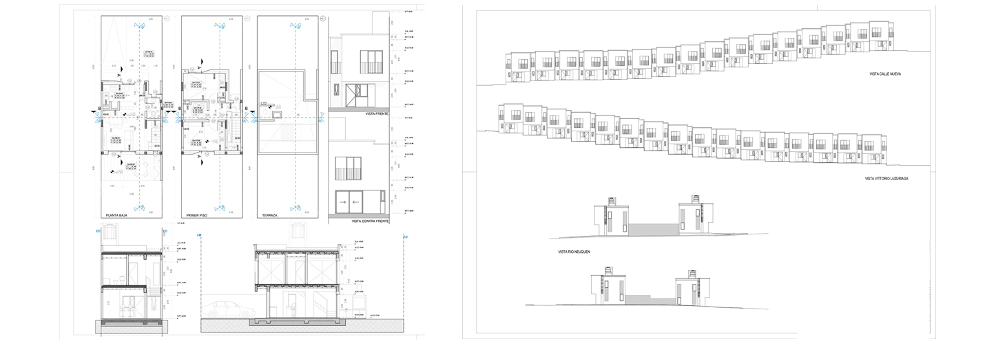
Ubicación: Entre calles Río Neuquén, Río Atuel, V. Luzuriaga y L. Sutton
Imágenes de obra: última actualización Agosto 2023






Las imágenes de los renders son solamente a modo ilustrativo.

Tipología de vivienda: Unifamilar/Dúplex
| Unidades | Superficie | Dormitorios | AMR* |
|---|---|---|---|
| 68 | 65m2 | 2 | No |
| 2 | 65m2 | 2 | Si |
*Vivienda apta para personas con movilidad reducida.
