Buenos Aires - Escobar - Loma Verde
En ejecución

180
Viviendas totales
2023
Año de inicio
15.444,45 m2
Superficie a construir
Ubicación: Entre Colectora Oeste, Leguizamo y Old Man, Escobar
Las imágenes de los renders son solamente a modo ilustrativo.



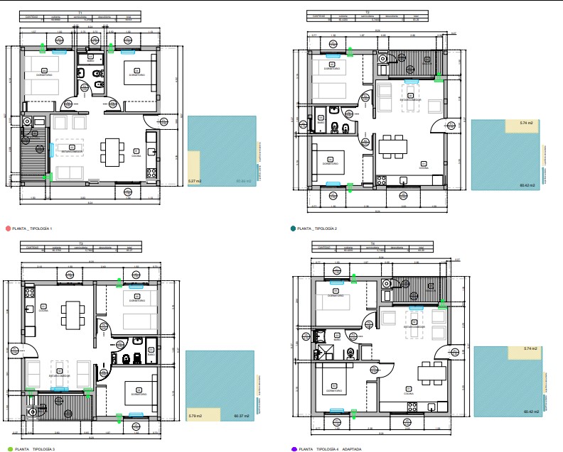
Tipología de vivienda: Multifamiliar
| Unidades | Superficie | Dormitorios | AMR* |
|---|---|---|---|
| 180 | 65m2 | 2 | No |
*Vivienda apta para personas con movilidad reducida.

